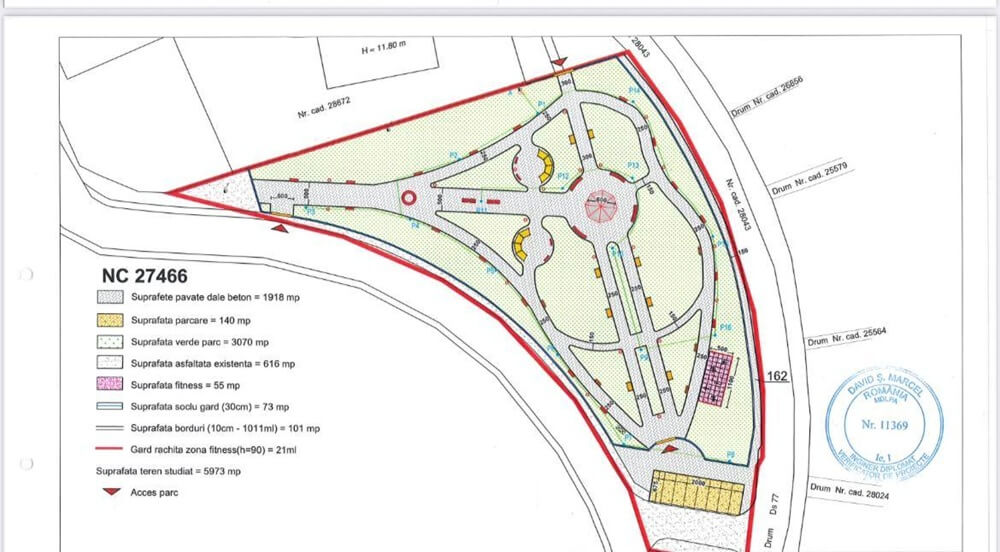
La Florești au început lucrările de amenajare a parcului din zona Grădinița Nouă.
Viitorul parc va fi dotat cu băncuțe confortabile, foișoare, stâlpi de iluminat moderni. În zonă vor fi amenajate un spațiu verde cu iarbă și pomi, unul de fitness pentru amatorii de mișcare, dar și parcări pentru comoditatea tuturor.
„Suntem nerăbdători să vedem finalizarea acestui proiect, care va adăuga un nou spațiu de recreere comunității noastre”, au subliniat reprezentanții administrației locale.
„Aștept cu mare nerăbdare finalizarea acestui proiect frumos. Ne cerem scuze pentru disconfortul creat în zonă până la terminarea lucrărilor”, declară primarul localității, Simona David.
Copiii din Florești vor primi gratuit pachete cu rechizite, la început de an școlar


